
111 Pradera Dr,
Greenville, Texas 75402

Call Us Today!
(903) 551-6444
What We DO
Our Process
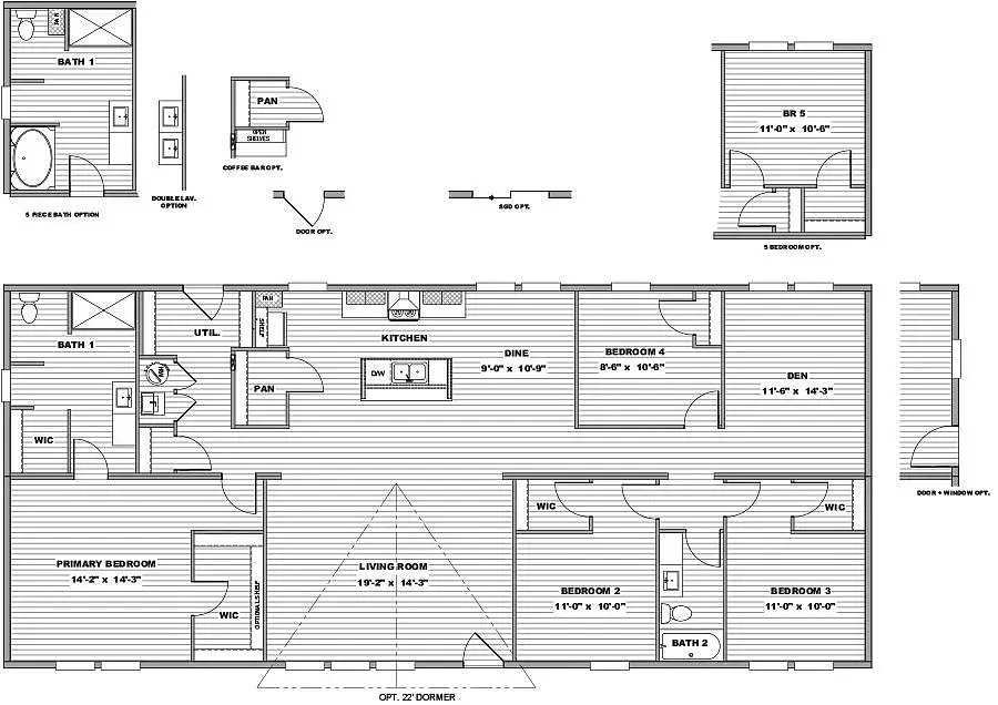
FLOOR PLAN DETAILS
BEDS: 5 BATHS: 2 SQ FT: 2040 W X L: 30x68
BUILT BY: CLAYTON
This stunning 4-bedroom manufactured home offers a perfect blend of modern design and spacious living. The home features generously sized bedrooms, ideal for family living, along with two full bathrooms for convenience and comfort. The open-concept kitchen is a highlight, featuring a sleek island and plenty of space for a dining table, making it perfect for both cooking and entertaining. In addition to the spacious living areas, the home boasts a large laundry room, providing extra storage and utility space. Enjoy year-round comfort with the home's efficient heat pump HVAC system and a reliable water heater. With its modern finishes and functional layout, this home is a must-see. Don't miss the opportunity to make this beautiful property your own!
3D TOUR
FACTS & FEATURES
FLOOR PLAN









© 2026. Pradera Estates. All rights reserved.
Terms of Service|Site Map
Pradera Estates operates under RBI License Number: MHDRET00038560 and
is regulated by the Texas Department of Housing and Community Affairs (TDHCA).